Arctic Cabin

The cabin is located on the west coast of Norway, right above the Arctic circle. It is on a hilltop, secluded by trees, with a view to the sea and the nearby islands. 

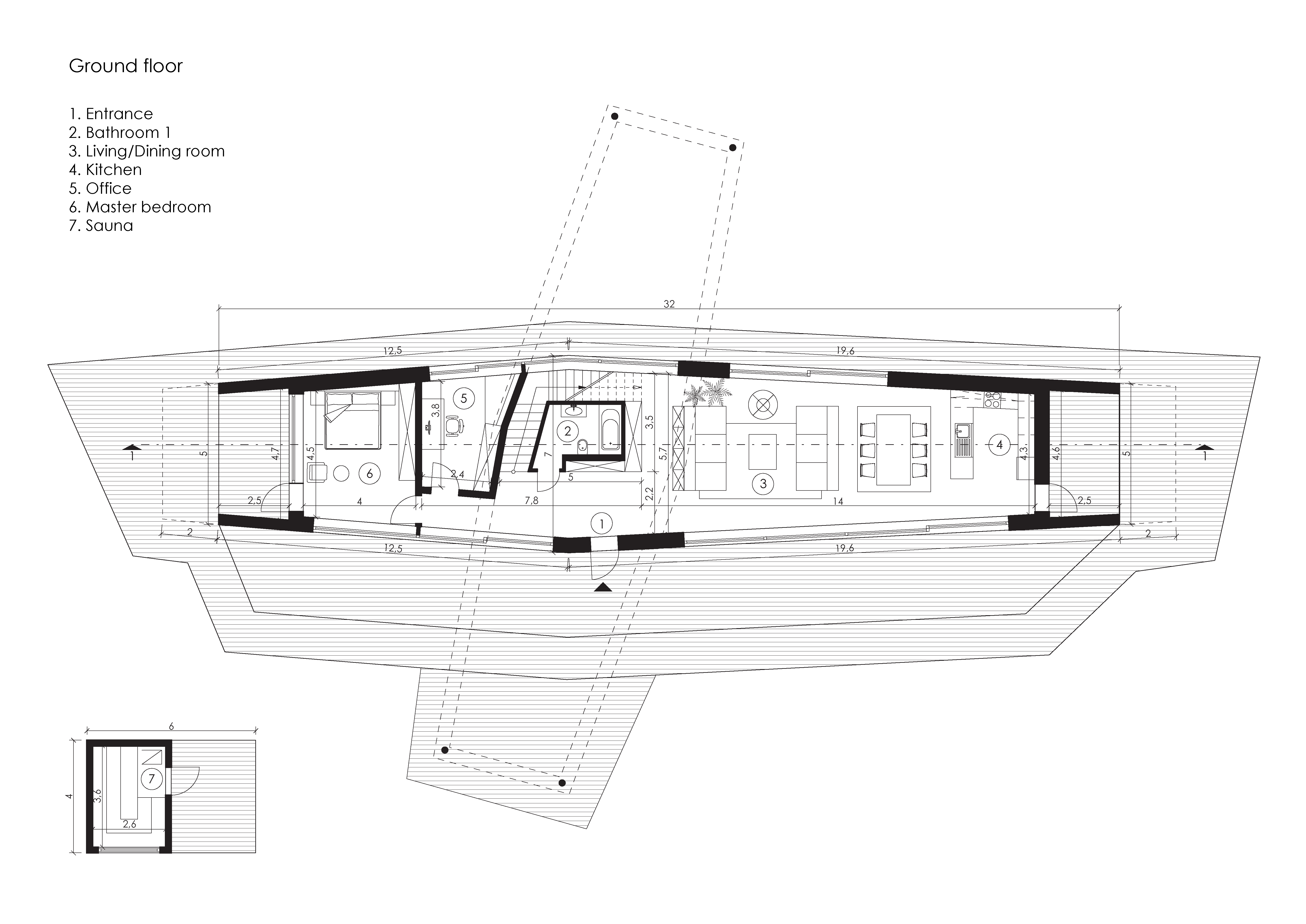
Its clean shape is inspired by Nordic minimalism and is intended to blend in with the surrounding nature. The position of the building is largely influenced by sun and wind patterns. 

Large window openings enrich the interiors with daylight and maximize the view. The extensive use of wood both in the exteriors and inside the building creates a warm and inviting atmosphere.  

The building is powered by a combination of several renewable energy sources.  

Date:
Category:
Location:
Meløy, Norway
Team:
Arus Manvelyan
Size:
380 m²